OCXT 08125 - 203

Ngày đăng: 30/01/2026 Cập nhật tiếp theo: 13/02/2026
Giá nhà /
Phí quản lý
65,000 (+3,000円)
Cọc / Lễ 65,000円 / 0円
Bảo hiểm 19,000円 (2 năm)
Phí bảo lãnh

100% (68,000円)

Chi phí khác

Hàng tháng

Vui lòng liên hệ

Ban đầu

Phí vệ sinh (thanh toán trước) 45,000円
Phí thay khóa 25,300円
Tình trạng Sắp chuyển ra
Hợp đồng 2 năm
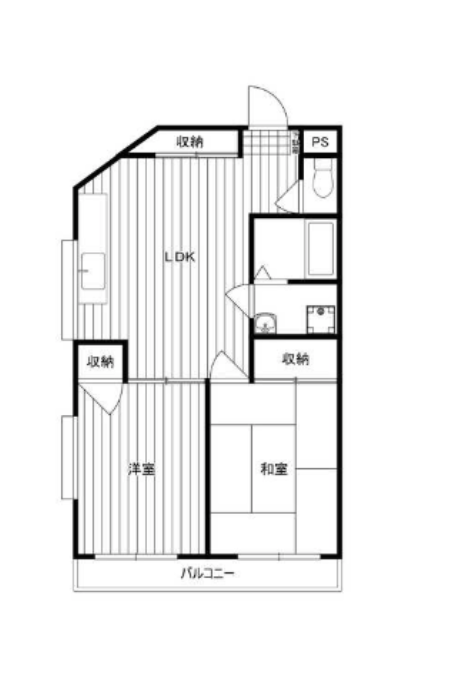
Kiểu bố trí 2LDK
Diện tích 42.8m²
Vị trí JR Ome Line
Ga Fussa đi bộ 10 phút
JR Hachiko Line (Hachioji-Komaigawa)
Ga Higashifussa đi bộ 17 phút
Tokyo, Fussa, Kamidaira
Thiết bị
trong phòng
Nhà tắm - nhà vệ sinh riêng biệt / Hệ thống sấy đồ trong phòng tắm / Bồn rửa mặt độc lập / Tủ giày / Tủ chứa đồ / Điều hòa / Có thể lắp bếp gas / Ban công / Máy nước nóng sử dụng gas / Chỗ để máy giặt trong phòng
Điều kiện thuê

Yêu cầu người liên hệ trong trường hợp khẩn cấp là người Nhật

Visa

Bạn thích phòng này?
Kiểm tra tình trạng phòng trống ngay

Nhân viên tư vấn

Dương Minh Lâm

ID căn hộ OCXT 08125 - 203

Gửi kèm ID căn hộ khi liên hệ cho chúng tôi
để được hỗ trợ nhanh chóng nhất

※ Lưu ý: Thông tin được đăng tải có thể sai khác do có sự thay đổi mà chưa được cập nhật, vui lòng liên hệ cho chúng tôi để kiểm tra thông tin mới nhất

Thông tin tòa nhà

Mã tòa nhà OCXT 08125
Số tầng 3
Năm xây dựng 1985
Loại nhà /
kết cấu
Chung cư / 鉄筋コンクリート造(RC)- Bê tông cốt thép RC
Trang thiết bị
chung
Chỗ để rác / Gas Propan
Tiện ích
xung quanh
Đang cập nhật